Work
contact
Work
contact
Morrison Ismond

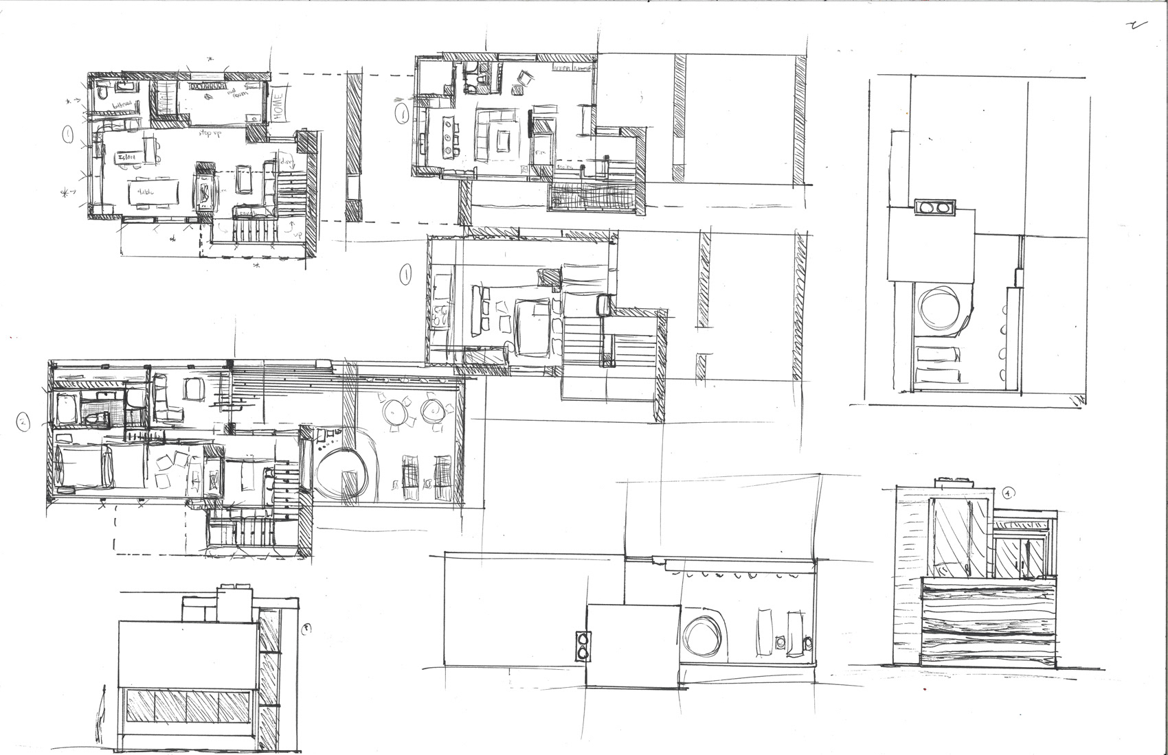
3D Printed Houses

bridging the gap between analog and digital mediums!

You may also like

Bauhaus Publication
2023
Architectural Sketches
2023
Mount Juneau Tote Bags
2024
Drafts: Us Signal Awards
2025
Miscellaneous Art
2023
Calvin Clipboards & Packaging
2024
Backslash
2024
Sketch Book + process work
2023
Us Signal Awards + Packaging
2025
Glue Book
2023
↑Back to Top
Morrison Ismond // ismonddesign@gmail.com